HVCC
  • Services
    • HV Components
    • Power Transformers
    • HV Components Testing
    • HV Testing Laboratory
    • Training Courses
  • Software
  • Partners
  • References
  • People
  • Downloads

Software

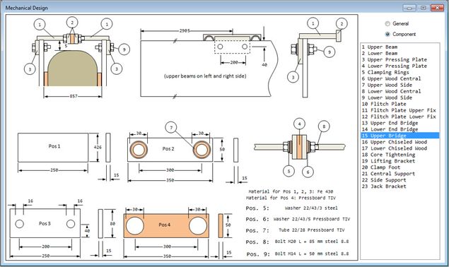
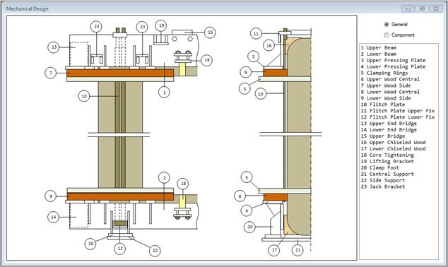
Power Transformers Design

A full Transformers Design package is available.

It can be customized on demand.

High Voltage Components Company

Contact Information


  • via Fiordaliso 15
    (LO) IT 26815
  • + 39 3317817077
  • info@hvcc.it


  • Services
  • Software
  • Partners
  • References
  • People


© 2020 High Voltage Components Company
All Rights Reserved.
Web Master: Frap Graphic